
一、功能與用途
SL型水過濾器廣泛用于冶金、化工、石油、造紙、醫藥、食品、采礦、電力、城市給水領域。諸如工業廢水,循環水的過濾,乳化液的再生,廢油過濾處理,冶金行業的連鑄水系統、高爐水系統,熱軋用高壓水除鱗系統。是一種先進、高效且易操作的全自動過濾裝置。
二、設備結構與工作原理
SL型水過濾器由殼體、多元濾芯、反沖洗機構、電控箱、減速機、電動閥門和差壓控制器等部分組成。殼體內的橫隔板將其內腔分為上、下兩腔,上腔內配有多個過濾芯,這樣充分利用了過濾空間,顯著縮小了過濾器的體積,下腔內安裝有反沖洗吸盤。工作時,濁液經入口進入過濾器下腔,又經隔板孔進入濾芯的內腔。大于過濾芯縫隙的雜質被截留,凈液穿過縫隙到達上腔,最后從出口送出。
本過濾器濾芯采用高強度的Johnson楔形濾網,通過壓差控制、定時控制自動清洗濾芯。當過濾器內雜質積聚在濾芯表面引起進出口壓差增大到設定值,或定時器達到預置時間時,電動控制箱發出信號,驅動反沖冼機構。當反沖洗吸盤口與濾芯進口正對時,排污閥打開,此時系統泄壓排水,吸盤與濾芯內側出現一個相對壓力低于濾芯外側水壓的負壓區,迫使部分凈循環水從濾芯外側流入濾芯內側,吸附在濾芯內壁上的雜質微粒隨水流進入吸盤內并從排污閥排出。特殊設計的Johnson網使得濾芯內部產生噴射效果,任何雜質都將被從光滑的內壁上沖走。當過濾器進出口壓差恢復正常或定時器設定時間結束后,電機停止運轉,電動排污閥關閉。整個過程中,物料不斷流,反洗耗水量少,實現了連續化、自動化生產。
三、本機特點
1、本過濾器減速機構采用NRV型減速機,外殼采用優質鋁合金壓鑄結構,散熱性好、噪聲小、重量輕、承載能力大;
2、密封裝置采用機械密封結構,密封性能可靠、使用壽命長、承壓能力強;
二、設備結構與工作原理
SL型水過濾器由殼體、多元濾芯、反沖洗機構、電控箱、減速機、電動閥門和差壓控制器等部分組成。殼體內的橫隔板將其內腔分為上、下兩腔,上腔內配有多個過濾芯,這樣充分利用了過濾空間,顯著縮小了過濾器的體積,下腔內安裝有反沖洗吸盤。工作時,濁液經入口進入過濾器下腔,又經隔板孔進入濾芯的內腔。大于過濾芯縫隙的雜質被截留,凈液穿過縫隙到達上腔,最后從出口送出。
本過濾器濾芯采用高強度的Johnson楔形濾網,通過壓差控制、定時控制自動清洗濾芯。當過濾器內雜質積聚在濾芯表面引起進出口壓差增大到設定值,或定時器達到預置時間時,電動控制箱發出信號,驅動反沖冼機構。當反沖洗吸盤口與濾芯進口正對時,排污閥打開,此時系統泄壓排水,吸盤與濾芯內側出現一個相對壓力低于濾芯外側水壓的負壓區,迫使部分凈循環水從濾芯外側流入濾芯內側,吸附在濾芯內壁上的雜質微粒隨水流進入吸盤內并從排污閥排出。特殊設計的Johnson網使得濾芯內部產生噴射效果,任何雜質都將被從光滑的內壁上沖走。當過濾器進出口壓差恢復正常或定時器設定時間結束后,電機停止運轉,電動排污閥關閉。整個過程中,物料不斷流,反洗耗水量少,實現了連續化、自動化生產。
三、本機特點
1、本過濾器減速機構采用NRV型減速機,外殼采用優質鋁合金壓鑄結構,散熱性好、噪聲小、重量輕、承載能力大;
2、密封裝置采用機械密封結構,密封性能可靠、使用壽命長、承壓能力強;
3、頂部設排氣閥,結構緊湊、啟閉靈敏;
4、差壓取樣部分采用可調式差壓開關或差壓變送器,信號反饋正確;
5、濾芯花板一般采用304不銹鋼,與反沖洗吸盤工作界面進行鏡面處理;
6、反沖洗吸盤采用增強聚四氟乙烯結構及反沖洗吸盤自整機構,能確保吸盤與濾芯花板的長效密封,增強了反沖洗效果;
7、本過濾器電氣控制部分采用PLC可編程控制器,清洗模式采用差壓控制、定時控制及手動控制并聯模式,清洗程序采用定時定位模式,反洗耗水量小,清洗徹底;
8、本過濾器排污閥門有水控閥門、電動球閥、電動蝶閥等型式供您選擇。
9、電控箱采用背包式全透屏戶外防水型結構。
四、主要技術參數
1、連接管公稱直徑:150、200、250、300、350、400、500、600、700、800、900、1000、1200
2、設計壓力:1.0MPa(另外有1.6MPa和2.5MPa可供選用)
3、過濾精度:
① 沖孔板結構≥1000μm;
② 復合編織網結構≥25μm
③ Johnson楔形網≥50μm
4、差壓設定值調節范圍:0.02~0.16MPa
5、切換差調節范圍:0.035~0.15 MPa
6、反沖洗時間設定范圍:1~24h
7、壓力損失:0.02~0.1 MPa
8、工作方式:手動、自動
9、電機參數:380V 50HZ(也可選用適合其他國家制式的電器系統)
10、電機功率:0.15~2.2KW
4、差壓取樣部分采用可調式差壓開關或差壓變送器,信號反饋正確;
5、濾芯花板一般采用304不銹鋼,與反沖洗吸盤工作界面進行鏡面處理;
6、反沖洗吸盤采用增強聚四氟乙烯結構及反沖洗吸盤自整機構,能確保吸盤與濾芯花板的長效密封,增強了反沖洗效果;
7、本過濾器電氣控制部分采用PLC可編程控制器,清洗模式采用差壓控制、定時控制及手動控制并聯模式,清洗程序采用定時定位模式,反洗耗水量小,清洗徹底;
8、本過濾器排污閥門有水控閥門、電動球閥、電動蝶閥等型式供您選擇。
9、電控箱采用背包式全透屏戶外防水型結構。
四、主要技術參數
1、連接管公稱直徑:150、200、250、300、350、400、500、600、700、800、900、1000、1200
2、設計壓力:1.0MPa(另外有1.6MPa和2.5MPa可供選用)
3、過濾精度:
① 沖孔板結構≥1000μm;
② 復合編織網結構≥25μm
③ Johnson楔形網≥50μm
4、差壓設定值調節范圍:0.02~0.16MPa
5、切換差調節范圍:0.035~0.15 MPa
6、反沖洗時間設定范圍:1~24h
7、壓力損失:0.02~0.1 MPa
8、工作方式:手動、自動
9、電機參數:380V 50HZ(也可選用適合其他國家制式的電器系統)
10、電機功率:0.15~2.2KW
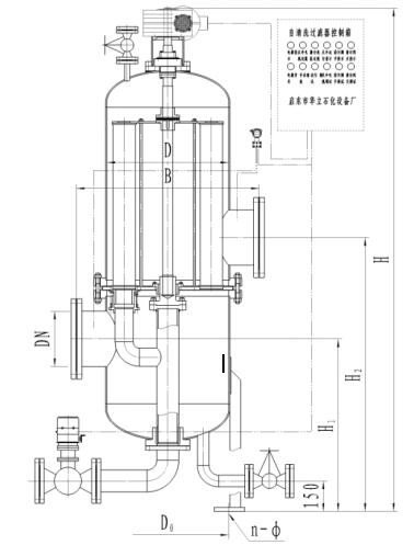
| 公稱通徑 | DN | 150 | 200 | 250 | 300 | 350 | 400 | 500 | 600 | 700 | 800 | 900 | 1000 | 1200 |
| 筒體直徑 | D | 500 | 600 | 600 | 900 | 900 | 1000 | 1200 | 1400 | 1600 | 1600 | 1800 | 2000 | 2400 |
| 進口高度 | H1 | 650 | 700 | 700 | 800 | 800 | 900 | 1000 | 1000 | 1100 | 1100 | 1200 | 1300 | 1500 |
| 出口高度 | H2 | 1150 | 1200 | 1200 | 1450 | 1450 | 1700 | 1850 | 2000 | 2100 | 2400 | 2600 | 2800 | 3300 |
| 總 高 | H | 2000 | 2000 | 2000 | 2350 | 2350 | 2650 | 2900 | 3050 | 3250 | 3550 | 3950 | 4260 | 5000 |
| 進出口法蘭距離 | B | 800 | 900 | 900 | 1200 | 1200 | 1300 | 1500 | 1800 | 2000 | 2000 | 2200 | 2400 | 2800 |
| 螺 孔 | n-φ | 3-φ24 | 3-φ24 | 3-φ24 | 3-φ24 | 3-φ24 | 4-φ26 | 4-φ26 | 4-φ30 | 4-φ30 | 4-φ30 | 4-φ30 | 4-φ30 | 4-φ36 |
| 支座安裝孔中心圓 | D0 | 450 | 500 | 500 | 720 | 720 | 850 | 960 | 1200 | 1400 | 1400 | 1500 | 1700 | 1950 |
| 參考流量m3/h | Q | 160 | 230 | 400 | 600 | 900 | 1000 | 1800 | 2500 | 3000 | 4000 | 5400 | 7000 | 10000 |





